Телевизор в спальне — уже давно не роскошь, а почти что предмет гигиены сна. Ну правда, как иногда хочется полежать и посмотреть что-нибудь перед сном! Современные плоские панели мы обычно вешаем на стену — так и пространство экономится, и смотреть из кровати куда удобнее. Но вот вопрос: на какой именно высоте?

Оказывается, есть несколько простых правил, которые помогут не испортить интерьер и сохранить ваш комфорт. Давайте разберемся, какая высота телевизора в спальне на стене будет идеальной именно для вас.

Какой высоты должен быть телевизор?
Все мы смотрим телевизор по-разному: кто-то час в день, а кто-то включает его для фона. Но в спальне главное — расслабление. Чтобы оно было полным, важно правильно расположить экран. Перед покупкой и монтажом задумайтесь о трех вещах:
- Размер панели. От диагонали напрямую зависит, куда и как ее можно повесить.
- Сопровождающая техника. Игровая приставка, медиаплеер — им тоже нужно место, и его стоит предусмотреть заранее.
- Тип крепления. Будет ли оно статичным или поворотным?

Есть хорошее эмпирическое правило: оптимальное расстояние от глаз до экрана равно примерно 2-4 его диагоналям. Запомните эту цифру.
Идеальное расположение на стене
Самый удачный вариант — повесить телевизор так, чтобы его центр был чуть выше уровня ваших глаз, когда вы лежите. Голова при этом должна оставаться в естественном положении — без запрокидывания и без лишней подушки под шеей. Иногда телевизор встраивают в мебель, например, в стенку-купе со специальной нишей. Это тоже отличное решение.

Отмеряем расстояние от пола
Строгих ГОСТов на этот счет не существует. Все очень индивидуально. Но как же тогда найти свою идеальную высоту?

Попробуйте этот лайфхак: сядьте или прилягте в свою кровать и закройте глаза на несколько секунд. Откройте их. Точка на стене, на которой остановился ваш взгляд, — и есть вероятный центр будущего экрана.

Опускать панель ниже одного метра от пола — плохая идея. Это неудобно и небезопасно: могут достать дети, pets, да и взрослый легко заденет.

Специалисты вывели усредненные рекомендации: центр экрана должен находиться на высоте 1,4–1,6 м от пола в комнате со стандартными потолками. Если потолки высокие, можно поднять до 1,6–1,8 м.

А если хочется смотреть лежа?
Для настоящих ценителей отдыха в горизонтальном положении есть решение: нужно поднять телевизор выше и слегка наклонить его верхнюю часть от стены. Угол наклона зависит от вашей позы и обычно составляет 15-20 градусов. Главное, чтобы экран был перпендикулярен вашему взгляду.

Иногда экран монтируют почти под потолком на поворотном или выдвижном кронштейне. В таком случае высота телевизора напротив кровати составит примерно 1,5–2 метра от пола.
Есть и экзотика — потолочное крепление. Тут высота не фиксирована и меняется в зависимости от конструкции кронштейна.

А представьте телевизор, подвешенный не напротив кровати, а прямо над ней? Смотрится футуристично! Но здесь критически важна надежность креплений и небольшой вес самой панели.

Плюсы и минусы разных мест
Выбирая место, думайте не только об удобстве, но и о сохранности техники. Некоторые соседи для телевизора могут быть опасны. Рассмотрим спорные локации:

- Над камином. Открытый огонь и искры — явная угроза. Современные электрокамины безопаснее, но горячий воздух все равно поднимается вверх. Вешать технику ближе, чем в полуметре над очагом, я бы не рекомендовал.
- Над батареей. Отопительные приборы редко нагреваются до критических температур, но постоянный тепловой поток — не лучшая среда для электроники. Лучше держать дистанцию.
- Прямо напротив окна. Солнечные блики могут полностью испортить просмотр. Спасут только очень плотные шторы. Но зачем создавать себе проблему?
- Под кондиционером. Теоретически исправный кондиционер не опасен. Но в случае протечки фреона или воды дорогая панель может выйти из строя. Да и эстетически такое соседство редко выглядит гармонично.

Что повесить над телевизором?
Пространство между верхним краем панели и потолком часто пустует. Его можно и нужно обыграть!

Подойдут легкие предметы: небольшие картины, фотографии, светодиодная подсветка или декоративное панно. А вот тяжелые полки, массивные рога или другая техника — не лучшая идея. Безопасность прежде всего.

Как вписать телевизор в интерьер спальни?
В большой комнате под медиатехнику можно выделить целую акцентную стену, сделав ее главным элементом дизайна.

В маленькой или строгой спальне телевизор часто вешают на стену без лишнего декора. А иногда и вовсе оставляют на тумбе — это классика, которая не требует лишних проводов и сложного монтажа.

Есть и хитрые способы маскировки: например, стилизация под картину в рамке или встраивание в шкаф. Последний вариант — настоящая палочка-выручалочка для экономии места.
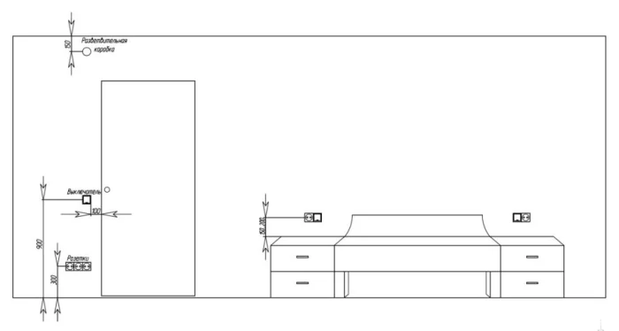
Зачем нужны правильно расположенные розетки?
Удобство современной техники — в ее простоте. И правильная розетка — ключевой элемент этого удобства. Вот ее преимущества:
- Позволяет спрятать все провода, создавая безупречно чистый вид.
- Дает возможность максимально близко придвинуть телевизор к стене. Он буквально сливается с поверхностью, как картина.
- Экономит время и нервы при подключении дополнительного оборудования: приставок, саундбаров, игровых консолей.

Лучше всего планировать расположение розеток на этапе ремонта, чтобы не портить потом обои. И закладывайте небольшой запас на будущее — техника имеет свойство меняться.
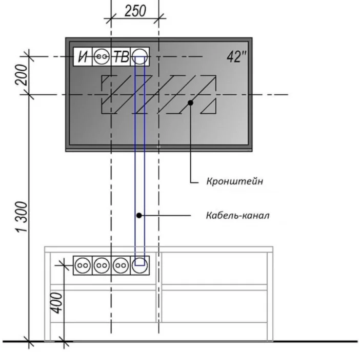
На какой высоте делать розетку для ТВ?
Менять телевизоры мы стали чаще, а вот переносить розетки — занятие хлопотное. Поэтому лучше установить их один раз и правильно.

Для спальни, где смотрят лежа, оптимальная высота розетки — около 2 метров от пола. Ориентируйтесь на центр экрана: он должен быть на уровне глаз, а розетка — аккуратно скрываться за ним.

Как рассчитать высоту розетки точно?
Можно воспользоваться формулой: (высота центра телевизора от пола) + (диагональ / 2) – (высота рамки розетки). Так вы точно получите точку, из которой розетка не будет видна ни под каким углом.

Если точные габариты будущего телевизора еще неизвестны, смело ставьте розетку на высоте 120-140 см. Это универсальный и удобный вариант.

Фотогалерея: телевизор в спальне — лучшие примеры
Вдохновляйтесь удачными интерьерными решениями!













































































