Красивый потолок — это как удачный аксессуар в образе: он не бросается в глаза сразу, но завершает пространство, делает его цельным и стильным. В квартире, офисе или даже в галерее.

Помимо модных натяжных конструкций, есть ещё один проверенный временем вариант — подвесной потолок Армстронг. Его популярность объяснить легко: он привлекательно выглядит, монтируется почти как конструктор, а встроенные светильники становятся его неотъемлемой частью.

Почему стоит выбрать именно его?
Конструкция проста до гениальности: к основному потолку крепится система алюминиевых профилей, образуя решётку. В её ячейки вставляются декоративные плиты и светильники. И вот что из этого выходит:
- Эстетика. Выглядит современно и аккуратно. Вариантов дизайна — масса.
- Доступность. Изначально такие потолки были прерогативой офисов, но теперь они вполне бюджетны и для дома.
- Простой монтаж. Справится даже новичок. Специальный инструмент не требуется.
- Экономия на свете. Чаще всего используются светодиодные светильники, которые потребляют минимум энергии.
- Практичность. Если одну плиту повредили (например, задели при перестановке), её легко заменить, не переделывая весь потолок.
- Пространство для коммуникаций. Как и в случае с натяжными потолками, над конструкцией можно спрятать провода, вентиляцию и другие не самые красивые, но необходимые элементы.
- Всё в наборе. Комплектующие продаются в сборе, а при необходимости их докупают поштучно.
- Лёгкость. Алюминиевый каркас почти невесом и не нагружает перекрытие.

А ещё — огромный выбор. Профили и плиты бывают разных цветов, фактур, имитируют дерево, металл, камень. Всё это богатство можно оценить на фото, прежде чем принимать решение.
Из чего состоит этот конструктор?
Прежде чем браться за установку, разберёмся с деталями. Основа системы — три элемента:
- Профили. Алюминиевые направляющие, из которых собирается решётка.
- Декоративные плиты. Вставляются в ячейки каркаса.
- Подвесы. Те самые элементы, которые соединяют каркас с основным потолком.

Кроме этого, в комплекте обычно идут вентиляционные решётки и, конечно, светодиодные светильники.

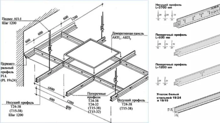
Профили: лёгкий и прочный каркас
Их делают из алюминиевого сплава — лёгкого, но прочного. На нижней части уже есть специальные пазы для фиксации плит. Можно найти профили стандартных цветов: белый, серебристый, чёрный, золотистый. Длина тоже стандартная: 60 см, 120 см, 360 см.

Выбор зависит от размеров комнаты. Важный нюанс: несущие профили можно наращивать, а вот поперечные — нет, их придётся подрезать точно в размер.

Декоративные плиты: сердце потолка
Плиты бывают двух основных размеров: 60х60 см и 60х120 см. Их толщина влияет на звуко- и теплоизоляцию. А по своим свойствам они делятся на несколько классов:
- Эконом-класс. Самые доступные. Минус — боятся влаги, впитывают её и могут деформироваться. Идеальны для сухих помещений с хорошей вентиляцией, например, офисов.
- Универсальные (Прима). Уже влагостойкие, хорошо поглощают шум. Отличный вариант для квартиры.
- Влагостойкие. Специальное покрытие защищает от сырости. Для ванных, кухонь, бассейнов.
- Акустические. С дополнительным звукопоглощающим слоем. Используют в торговых центрах, офисах open-space.
Есть ещё гигиенические плиты, которые легко моются и дезинфицируются. Их ставят в больницах, лабораториях, на пищевых производствах. От выбора плит во многом зависит итоговая стоимость потолка.

Подвесы: связующее звено
Это металлические детали, которые цепляются одним концом к основному потолку, а другим — удерживают несущий профиль. Всё гениально и просто.

Как собрать потолок Армстронг: шаг за шагом
Работать нужно строго по инструкции. Ошибки в разметке или креплении приведут к перекосу, некрасивым стыкам плит и плохой изоляции.

Самый частый промах — неверная разметка. Из-за неё весь геометрический рисунок «поедет», а исправить это потом будет очень сложно.
Шаг 1. Всё рассчитать
Начинаем с математики. Замеряем потолок, считаем количество профилей, плит и подвесов. Подвесы обычно крепят с шагом 1,2 метра. Количество = длина комнаты / 1,2.

Нарисуйте простую схему на бумаге: где будут профили, подвесы, светильники, вентиляция. Этот план спасёт от многих ошибок в процессе.

Шаг 2. Подготовить основу
Черновой потолок нужно привести в порядок:
- Снять старое покрытие (побелку, краску), которое может осыпаться позже и испортить плиты.
- Зашпаклевать все трещины.
- Проверить на предмет протечек. Проблемные места обработать гидроизоляцией.
- По периметру можно смонтировать обрешётку и уложить слой теплоизоляции (минеральную вату, например).

На этапе подготовки проложите всю необходимую проводку и вентиляционные каналы. Хорошая вентиляция над потолком — залог того, что там не появится конденсат и плесень.

Шаг 3. Сборка каркаса и монтаж плит
Вот главная последовательность действий. Действуйте чётко:
- Разметка. С помощью лазерного уровня отбейте на стенах линию, по которой пойдёт стенной (направляющий) профиль.
- Крепление стенового профиля. Прикрутите его по разметке дюбелями с шагом не более 50 см. В углах профиль можно надрезать и аккуратно согнуть.
- Монтаж несущих профилей. Их крепят параллельно короткой стене с шагом 1,2 метра. Сначала разметьте их положение на потолке, используя отбивочный шнур. Затем зафиксируйте их к стенным профилям и подвесьте к потолку на регулируемых подвесах.
- Установка подвесов для светильников. Отступите от несущих профилей 15-25 см, чтобы крючки не мешали плитам.
- Выравнивание. Это ключевой момент! Регулируя длину подвесов, добейтесь идеально ровной плоскости всего каркаса. Закрепите подвесы окончательно.
- Поперечные профили. Вставьте их в пазы несущих, создав решётку с ячейками 60х60 или 60х120 см.

Как только каркас готов, сразу подведите и подключите все коммуникации: светильники, вентиляцию, провода для кондиционера.
Финальный аккорд — установка плит. Каждую плиту вставляйте в ячейку под углом, а затем поворачивайте в рабочее положение. Она мягко ляжет на полочки профилей. Слышен лёгкий щелчок? Значит, всё на месте.

Галерея идей: каким может быть потолок Армстронг
Теория — это хорошо, но вдохновение черпается из примеров. Смотрите, как это выглядит в реальных интерьерах.

