Знаете, в чем главная разница между просто кучей блоков и настоящим блочным фундаментом? Правильно, в арматуре. Представьте, что блоки — это кости скелета, а стальные прутья — связки и сухожилия. Без них конструкция рассыпается при первой серьезной нагрузке. Армирование — это не формальность, а самая важная операция, которая превращает сборную конструкцию в монолитного защитника вашего дома. Без него никакая гидроизоляция и утепление не спасут от трещин. Сегодня разберем, как правильно вживлять «нервную систему» в тело блочного фундамента.
Сердце армирования — стальные стержни, которые укладываются внутрь блоков и связываются между собой. Задача не в том, чтобы просто бросить несколько прутьев в траншею. Нужно создать жесткий пространственный каркас, который будет работать на растяжение — там, где хрупкий бетон сам не справляется. Весь процесс, от выбора диаметра до способа вязки, должен строго следовать проекту. Давайте разбираться, как не допустить ошибок, которые потом будут стоить целостности стен.
Что такое блочный фундамент и зачем ему сталь?
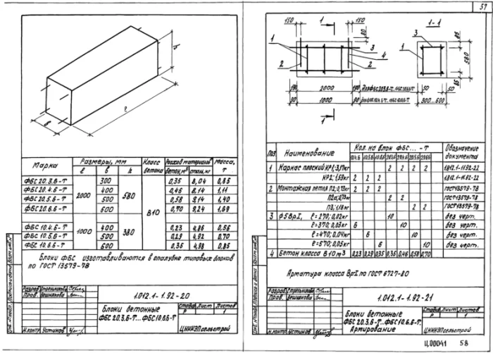
Это конструктор для взрослых. Отдельные бетонные блоки (ФБС) выстраиваются в ленту и скрепляются цементным раствором. Это быстро, часто дешевле монолита, и отлично подходит для домов в 1-2 этажа на хорошем грунте. Но есть нюанс: сами по себе блоки, даже склеенные, — это все равно набор элементов. Они плохо сопротивляются изгибу и растяжению, которые возникают при подвижках грунта. Вот тут-то и вступает в дело арматура. Она берет на себя эти коварные нагрузки, не давая швам между блоками разойтись.
| Плюсы блочного фундамента | Минусы (без армирования) | Где он хорош |
|---|---|---|
|
|
|
Без этого никак: зачем армировать?
Давайте начистоту: можно ли обойтись без арматуры? Теоретически для легкой сараюшки — да. Практически для любого жилого дома — нет, если вы не хотите играть в рулетку с судьбой здания. Армирование решает сразу несколько критических задач.
Стальные прутья закладываются в специальные пазы блоков или в швы между ними, а чаще — в монолитные пояса поверх блоков. Они работают в тандеме с бетоном: бетон прекрасно держит сжатие, а арматура — растяжение. Вместе они становятся железобетоном — одним из самых прочных искусственных материалов.
Почему это не просто рекомендация, а must-have? Вот ключевые причины:
Повышаем несущую способность
Фундамент перестает быть просто «подставкой». Он становится активным элементом, который распределяет вес дома на грунт и сам гасит внутренние напряжения. Арматурный каркас позволяет ему выдерживать вес в разы больше, чем могла бы просто кладка.
Боремся с трещинами
Самая частая беда — волосяные трещины в цоколе или, что хуже, в стенах дома. Часто их причина — деформация фундамента. Арматура скрепляет блоки, не давая швам «играть» и предотвращая раскрытие трещин. Это как гипс на сломанной руке.
Дарим долголетие
Правильно уложенная арматура, защищенная от коррозии слоем бетона, практически вечна. Она обеспечивает фундаменту тот самый запас прочности, который позволяет ему стоять десятки лет, сопротивляясь и воде, и морозу, и времени.
Делаем дом устойчивым
Это особенно важно в зонах с подвижными грунтами или сейсмической активностью. Жесткий арматурный каркас не даст фундаменту сложиться, как карточный домик, при боковых нагрузках. Он будет сопротивляться как единое целое.
Вывод простой: проектируя армирование, нужно думать не только о весе дома, но и о характере грунта, уровне вод, перепадах температур. Ошибки здесь непростительны. И да, в сейсмоопасных районах требования к арматуре и ее укладке — особые, на грани паранойи. Но это именно тот случай, когда лучше перебдеть.
Помните: сэкономить на арматуре — все равно что снять ремни безопасности в машине потому, что «едем недалеко». Пока все хорошо, кажется, что они и не нужны. А в момент «встречи» с проблемным грунтом последствия могут быть необратимыми.
Какая бывает арматура? Выбираем солдата
Не вся сталь одинакова. Для разных задач в каркасе используются разные типы прутьев.
Рабочая (продольная) арматура
Это главные бойцы. Толстые стержни (обычно 12-14 мм в диаметре), которые укладываются вдоль ленты фундамента. Они берут на себя основные нагрузки на растяжение и изгиб. Их количество и диаметр строго рассчитывает инженер.
Конструктивная (поперечная и вертикальная) арматура
Это младшие братья, но не менее важные. Более тонкие стержни (6-8 мм), которые формируют каркас, связывая продольную арматуру в единую пространственную конструкцию. Они же предотвращают появление трещин от усадки и местных напряжений.
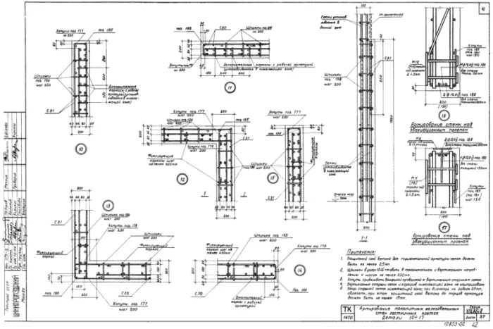
Угловое и Т-образное усиление
Самые нагруженные места в фундаменте — это углы и пересечения стен. Здесь нагрузка концентрируется. Поэтому арматуру в этих узлах усиливают: укладывают дополнительными хомутами, гнут специальным образом, чтобы прутья заходили на соседнюю стену. Это предотвращает расхождение углов.
Сколько нужно стали? Считаем вместе
Расчет — дело инженера. Но чтобы понимать масштаб, давайте прикинем. Количество арматуры зависит от всего: длины и ширины ленты, количества рядов блоков, проектных нагрузок.
Для блочного фундамента обычно хватает двух стержней рабочей арматуры сверху и двух снизу (в монолитном поясе). Диаметр — 12-14 мм. Шаг поперечных хомутов — 300-500 мм.
Грубая формула для предварительной прикидки (но не для окончательного расчета!):
Общая длина арматуры (м) = (Периметр фундамента х Количество стержней в уровне) + (То же для верхнего уровня) + Дополнительные расходы на хомуты и нахлесты.
Например, для дома 10х10 м (периметр 40 м) с двумя стержнями сверху и снизу: 40 м * 4 стержня = 160 метров только продольной арматуры. Плюс около 30-40% на хомуты, усиления и нахлесты. Итого ~220 метров.
Не пытайтесь рассчитать все сами по формулам из интернета. Неучтенные нагрузки, тип грунта, сейсмика — все это меняет картину. Доверьте это проектировщику. Ваша задача — купить именно то, что указано в проекте, и не меньше.
На что смотреть при покупке?
Сталь стали рознь. Вот чек-лист при выборе:
- Класс прочности. Для фундамента нужна арматура класса А-III (А400) или выше. Это рифленая сталь, которая идеально сцепляется с бетоном. Гладкая (А-I) годится только для хомутов.
- Диаметр. Должен точно соответствовать проекту. Никакого «возьмем 10 мм вместо 12, она дешевле».
- Внешний вид. Не должно быть глубокой ржавчины (легкий налет допустим), отслоений, трещин. Рифление — четкое.
- Сертификат. Не стесняйтесь просить у продавца сертификат качества на партию. Это ваша гарантия, что сталь соответствует ГОСТу.
Для особо ответственных участков или сложных грунтов сейчас используют композитную (стеклопластиковую) арматуру. Она не ржавеет, легче, но требует особых навыков монтажа и имеет другие характеристики по упругости. Решение о ее применении должен принимать инженер.
Покупайте у крупных поставщиков, а не с «левой» машины у стройки. Разница в цене окупится спокойным сном. И запомните: хорошая арматура гнется с трудом и пружинит, а плохая — может сломаться.
Пошаговый монтаж: как не накосячить
Теория — это здорово, но все решается на стройплощадке. Вот алгоритм, от которого нельзя отступать.
| Этап | Что делаем | Важные мелочи |
|---|---|---|
| 1. Подготовка | Размечаем места укладки арматуры согласно чертежу. Готовим прутья: режем, гнем для углов. | Используем болгарку или специальные ножницы. Не ломаем! |
| 2. Укладка нижнего пояса | На пластиковые фиксаторы («стульчики») укладываем продольные стержни. Высота фиксаторов — чтобы обеспечить защитный слой бетона снизу (40-50 мм). | Никаких кирпичей и деревяшек в качестве подставок! Только пластиковые фиксаторы. |
| 3. Вязка каркаса | Устанавливаем вертикальные стойки и поперечные хомуты. Связываем все пересечения вязальной проволокой (диаметр 1,2-1,5 мм) или используем пластиковые хомуты. | Сварка возможна, но только специальной арматурой, допускающей сварку (литера «С» в маркировке). Обычная сварка «отпускает» сталь, делая ее хрупкой в месте шва. |
| 4. Установка в блоки | Если арматура закладывается в пазы блоков, следим, чтобы она была строго по центру и не касалась стенок. Если в монолитный пояс поверх блоков — ставим опалубку. | Перед заливкой бетона все должно быть жестко зафиксировано, каркас не должен шататься. |
| 5. Контроль и заливка | Проверяем размеры, защитные слои, целостность. Заливаем бетон, обязательно уплотняя его вибратором, чтобы не осталось воздушных карманов вокруг прутьев. | Защитный слой бетона со всех сторон арматуры — минимум 40 мм. Это защита от коррозии. |
Самый частый грех — это уложить арматуру прямо на грунт или песчаную подушку. Через несколько лет она сгниет в этом месте, и фундамент потеряет прочность. Следите за «защитным слоем» как за зеницей ока.
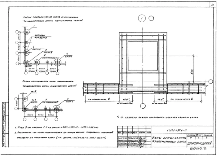
Как крепить арматуру в блоках? Главные узлы
С блочным фундаментом есть особенность: часто арматурный каркас располагают не внутри каждого блока, а в монолитном железобетонном поясе (ростверке), который заливают поверх последнего ряда. Это самый правильный и надежный способ. Но иногда прутья нужно пропустить через блоки.
Для этого используют специальные пластиковые фиксаторы или засверливаются в боковых гранях блоков, чтобы пропустить поперечные стержни. Важно: отверстия не должны ослаблять блок. Лучше всего, когда это предусмотрено конструкцией блока (есть пазы).
После укладки каркаса и проверки геометрии заливается бетон. Он должен быть класса не ниже В15. Заливать — желательно за один раз, без длительных перерывов. И вибрировать, вибрировать, вибрировать! Без этого арматура не «обволакивается» бетоном плотно, и связь будет слабой.
Пока бетон не набрал прочность (28 дней), не нагружайте фундамент и не снимайте опалубку раньше времени. Дайте ему набраться сил вместе со своей стальной «мускулатурой».
Как проверить, что все сделано хорошо?
Контроль нужен на каждом этапе. Вот как это делают прорабы (и вам советую).
Визуальный контроль. Каркас должен быть чистым (без грязи и масла), геометрия — соответствовать чертежу, все стержни — на своих местах. Особое внимание — углам и узлам.
Проверка защитного слоя. Существуют специальные магнитные датчики, но можно и линейкой: замеряем расстояние от арматуры до края будущей бетонной поверхности. Должно быть 40-50 мм.
Ультразвуковой контроль (УЗК). После заливки бетона с помощью специального прибора можно «просветить» конструкцию и убедиться, что внутри нет пустот (раковин) вокруг арматуры и что она расположена правильно. Метод для ответственных объектов.
Испытание образцов. При заливке отливают небольшие кубики из той же бетонной смеси. Через 28 дней их отправляют в лабораторию и давят прессом, чтобы определить реальную прочность бетона.
Главное правило контроля — он должен быть независимым. Если вы нанимаете бригаду, попросите прораба составить акт скрытых работ по армированию с фотофиксацией каждого этапа, прежде чем зальют бетон. Это дисциплинирует всех.
Слышали фразу «глаз прораба — алмаз»? В случае с армированием это не шутка. Лучше десять раз перемерить и перепроверить, чем один раз залить и надеяться на авось.
Сколько это стоит и как долго делается?
| Что влияет на цену и сроки | Ориентиры | Советы |
|---|---|---|
| Объем работ (периметр, высота фундамента) | Стоимость материалов (арматура, вязальная проволока, фиксаторы) + работа. Работа обычно стоит 30-50% от стоимости материалов. | Заказывайте материалы оптом, это дешевле. Сравнивайте сметы от разных бригад, но не выбирайте самую дешевую — ищите адекватную. |
| Сложность (наличие множества углов, перепадов высот) | На армирование фундамента под средний дом уходит 3-7 дней в зависимости от размера бригады. | Учитывайте время на доставку материалов и возможные простои из-за погоды. |
| Стоимость материалов на рынке | Примерная стоимость арматуры А-III 12 мм — ~40-50 руб/пог.м. (цены浮动). На дом 10х10 м уйдет ~220 м = 9 000 - 11 000 руб. только на продольную арматуру. | Заключайте договор с прописанными сроками и этапами оплаты. Никогда не платите 100% авансом. |
Помните, что экономия на арматуре или работе по ее укладке — это не экономия, а отложенные расходы. На ремонте фундамента вы потратите в десятки раз больше.
Как потом жить с таким фундаментом?
Итак, фундамент залит, дом построен. Что дальше? Армированный фундамент не требует какого-то особого ухода, но несколько правил продлят его век.
Следите за влажностью. Основной враг арматуры внутри бетона — это вода, которая все-таки нашла лазейку. Следите, чтобы отмостка была целой, а дренаж работал. Сырой цоколь — тревожный звоночек.
Не ломайте целостность. Не стоит бездумно бурить фундамент перфоратором, чтобы что-то прикрепить. Если нужно завести коммуникации, делайте это аккуратно, а отверстия потом герметизируйте.
Регулярный осмотр. Раз в год-два обходите дом и смотрите на цоколь. Появились новые трещины? Старые расширяются? Это повод для серьезной диагностики.
Если что-то пошло не так... Обнаружили проблему? Не замазывайте ее штукатуркой. Нужно понять причину. Возможно, потребуется инъектирование трещин или даже усиление фундамента. Главное — действовать быстро.
Думайте о фундаменте как о здоровье: легче поддерживать его в порядке, чем лечить запущенную болезнь. Годами он может не подавать признаков, но однажды «грянет» — и ремонт встанет в копеечку.
Как не допустить деформаций с самого начала?
Лучшая защита — это нападение, а в нашем случае — грамотное предупреждение. Чтобы фундамент не повело, нужно:
Идеально подготовить основание. Ровная, утрамбованная песчано-гравийная подушка — залог того, что блоки не просядут неравномерно.
Связать углы. Мы уже говорили, что углы — слабое место. При вязке каркаса уделите им втрое больше внимания. Используйте Г-образные и П-образные хомуты.
Заливать бетон правильно. Без вибратора, с перерывами и в жару бетон даст усадку и отслоится от арматуры. Заливайте непрерывно, уплотняйте и ухаживайте за бетоном после заливки (укрывайте пленкой, поливайте в жару).
Учесть климат. В регионах с сильным морозным пучением грунта нужно не только армировать, но и утеплять фундамент, делать дренаж. Иначе силы пучения все равно могут его переломить, несмотря на арматуру.
Комплексный подход — единственный верный. Армирование — мощный инструмент, но не панацея от всех бед, если другие этапы выполнены спустя рукава.
Строительство — это система. Нельзя сделать идеальное армирование на кривом основании и ждать чуда. Все должно быть качественным: и грунт, и блоки, и раствор, и арматура, и бетон. Только тогда результат будет радовать поколения.
Способы дополнительного усиления
Бывает, что нужно усилить уже существующий фундамент или изначально заложить повышенную прочность. Вот что можно сделать:
| Метод | Суть | Когда применяется |
|---|---|---|
| Усиление монолитным железобетонным поясом | Заливка поверх блоков мощного армированного ростверка увеличенного сечения. | Планируется тяжелая кладка, второй этаж, сложный грунт. |
| Применение арматурных сеток в швах | В каждый горизонтальный шов между блоками укладывается кладочная сетка из проволоки 4-5 мм. | Для увеличения прочности кладки на разрыв, дополнительная связка блоков. |
| Инъектирование | В готовый фундамент под давлением нагнетаются полимерные или цементные составы, укрепляющие тело блока и грунт вокруг. | Для ремонта и усиления уже построенного, дающего трещины фундамента. |
Дополнительное усиление — это всегда увеличение бюджета. Но иногда это единственный способ спасти ситуацию или построить дом мечты на сложном участке. Решение должно быть взвешенным и просчитанным.
Гидроизоляция: обязательный партнер арматуры
Арматура боится воды. Даже внутри бетона, если он постоянно мокрый, может начаться коррозия. Ржавеющая сталь увеличивается в объеме и рвет бетон изнутри. Поэтому вертикальная и горизонтальная гидроизоляция фундамента — неотъемлемая часть защиты арматуры.
Особенно тщательно нужно изолировать место, где арматура может контактировать с внешней средой (например, выпуски арматуры для следующего этажа). Используйте обмазочные (битумные) или рулонные материалы, не забывая про гидроизоляцию под первым рядом блоков.
Контроль гидроизоляции прост: после дождя или таяния снега цоколь должен быть сухим. Если нет — ищите брешь и срочно ее латайте.
Армирование и гидроизоляция — это два кита, на которых стоит долговечность фундамента. Одно без другого работает вполсилы. Не пренебрегайте ни тем, ни другим.
Фотогалерея: процесс в картинках
